基本信息
酒店名称:The Ritz Carlton Hotel Guangzhou(广州富力丽思卡尔顿酒店)
所属酒店集团:?万豪酒店集团
入住者酒店会员等级:万豪旅享家钛金会籍
入住房间:Executive Suite(行政套房)
酒店等级:等级5,标准房晚一晚上需要35K点数,淡季30K点数,旺季40K点数
体验时间:2019年6月
上次酒店体验给大家介绍了?顺德联塑万怡酒店,只带爷爷奶奶去体验一晚万怡肯定是不够的,为了让爷爷愉快地度过一次生日,我们把目标锁定在了广州市区里面最优秀的几个酒店,而作为万豪钛金会员,当然最值得体验的就是鼎鼎大名的丽思卡尔顿了。而且恰好有搬砖协议价,税前850人民币一晚根本就完全不值得烧积分了,搞起再说。

入住手续
从顺德万怡出来之后,我们去逢简水乡玩耍了一下,然后在下午的时候就驾车来到繁华的广州天河区,终于有机会体验一波国内的丽思卡尔顿了,也是非常激动了。广州丽思这个建筑物我是不会错过的,之前去小蛮腰俯瞰广州全城的时候就注意到这栋建筑物了,丽思的logo在顶上实在是太显眼了。

来到大门,第一眼看到的就是这个福布斯五星级酒店的标志,One of the Finest Properties in the World这个字样让我不得不对这次入住的期待值再一次拉高。

进入大门可以看到一个喷水池,会有水柱从正上方流下。

水柱来自天花板这个类似菊花造型的正中间,这个设计酷炫是酷炫,但是我好像想到了什么奇怪的东西。

Checkin时间到,其实这个住宿的入住前一天晚上预定的(之前非常Naive地订了广州W,后来有人强烈安利广州丽思卡尔顿于是我换了过来),所以并没有任何事先谈心。不过运气非常好的是一间客房成功升到了行政套房,不过其他两间客房就没有升级了(同行者还有两个万豪金,然并卵),稍微遗憾的地方就是没有客房升级到江景房,不过不管怎么说,能体验一下丽思的行政套房已经超乎预期了。至于免费早餐、免费行政酒廊,这些都要rmb玩家才有了,羊毛党表示放弃。

大堂对着的另一侧则是大家喝下午茶的地方。

酒店客房 – 行政套房
酒店客房的楼层是从20 – 38层,我们入住的时候酒店恰好在进行翻新工作,有大约四层楼的客房完成了翻新(具体哪四层我不记得了,似乎是20-23层),总之我们入住的行政客房还仍未翻新。

迫不及待想参观鼎鼎大名的丽思行政套房了,想必是吊打前一天入住的万怡行政套房了,乘坐电梯来到我们客房的楼层,这感觉在其他非顶级品牌酒店里面是很难有的啊。

行政客房位于29层2922客房,这房门也是霸气。

进入客房后,首先看到的是一个面积巨大的玄关区域,与之相连的是一个步入式衣橱以及另一侧的小盥洗室。


还是先参观一下整个套房的核心部分——客厅吧,这个客厅震撼到我了,一种属于丽思卡尔顿的尊贵宫廷风就出来了,虽然这个套房已经使用了将近12年之久,但是保养的真的非常到位了可以说。


茶几上的欢迎礼满分,感谢酒店的用心准备。

除了欢迎礼之外,这套茶具也是非常到位了,正好让我们一家人可以在此喝茶聊天(然而并没有时间,可惜了)。

这个客厅的细节部分也非常到位,电视柜这边放了不少艺术品,连四大名著都放在这了,也许真的有入住的客人会看呢。

客厅还有一个小小的办公区域。

客厅区域的这个中控系统瞬间暴露了酒店的年龄。

接下来看看卧室,相比客厅来说相对朴素一些,倒是这个电视是可以升降的还蛮有意思的。

这个吊灯给房间加分不少。

床头柜的中控台再次暴露酒店年龄。

行政套房的是城景,套房给力就不用在乎景色了。

行政套房最后一个部分就是主盥洗室了,毫无疑问是顶奢酒店的标准配置。



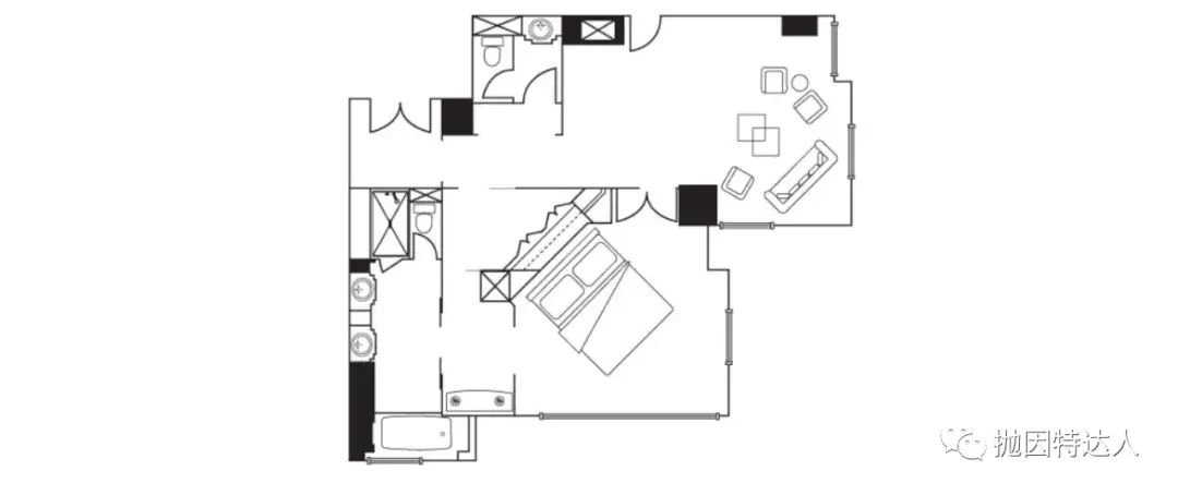
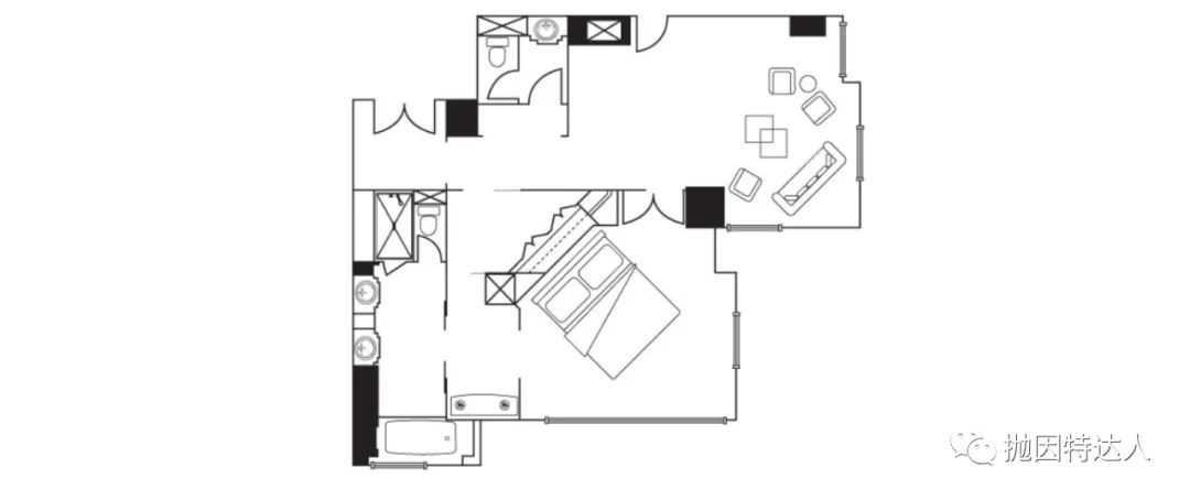
酒店楼层图如下,四间角房都是行政客房。

整个行政套房面积大约100平方米,这个布局真心给力。

酒店客房 – 豪华客房
看完套房之后,我们来看看基础客房如何,非常幸运的是有一间客房是翻新之后的客房,来带大家看看哦。这个翻新主要就是换了一下沙发和电视,房间大部分的硬件还是继续保持了之前的样貌。



这个房间的景色是歌剧院,可以隐隐约约看到珠江。

豪华客房的步入式衣橱要比行政套房的要小不少。

盥洗室仍然高配,虽然面积没有行政套房的来的大,但是配置都是同样到位的。



翻新的另一个地方在于变成了智能马桶,满分好评。

酒店设施
酒店健身中心和游泳池在4楼,于是去参观下。

第二天早上的时候来参观了一下泳池,使用的人并不是很多。


顺便参观了一下健身房,配置非常齐全了,可惜没时间使用。
<< 滑动查看下一张图片 >>
入住点评
由于并没有在酒店用餐,就没有早餐和行政酒廊的点评了(入住期间都在外面吃饭了)。难得有机会体验一次中国地区的丽思卡尔顿酒店,不得不说对比欧美的来说确实软硬件都是优秀太多了,确实也让我感受到了福布斯五星酒店的标准。
酒店虽然有一定年纪了,但是整个硬件的保养非常到位,行政套房富丽堂皇的古典风格目前很少在其他品牌酒店里面看到,总体而言完全不输一些新落成的酒店。目测酒店现在已经对行政套房进行过翻新了,相信翻新后会有更多惊喜给大家。即便是豪华客房,我们从整个布局上面来看其实也很像欧美的一些标准套房了,也是非常推荐大家来入住的。







